介護付き有料老人ホーム
エクセレント町田

所在地
〒194-0213
東京都町田市常盤町2955-1
空室状況
 
 更新 / 空室状況は変動しますので、表示内容に関わらずお気軽にお問合せください
介護付き有料老人ホーム エクセレント町田の外観

町田市の介護付き有料老人ホーム エクセレント町田のホーム案内

介護付き有料老人ホーム エクセレント町田 2F

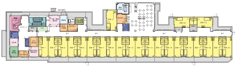
町田市の介護専用型有料老人ホーム エクセレント町田 1F

介護付き有料老人ホーム エクセレント町田 3F

町田市の介護専用型有料老人ホーム エクセレント町田 2F~3F

Googleインドアビュー

事業所概要

名称 介護付き有料老人ホーム エクセレント町田
所在地 〒194-0213
東京都町田市常盤町2955-1
種類 特定施設入居者生活介護(介護専用型)
(介護付き有料老人ホーム)
事業所番号 1373205705
入居の要件 介護専用型(要介護1~5)
敷地面積 2461.57平米
延床面積 1889.85平米
構造 地上3階地下0階・耐火建築物
居室数 50室(全室個室)
居室面積 18.57~20.62平米
居住の権利形態 利用権方式
利用料の支払い方式 月払い方式
開設 2016年4月1日

アクセス

交通案内

電車とバスでお越しの場合
JR横浜線 [淵野辺駅]下車
神奈中バス [淵野辺駅北口]より、バス停[常盤]下車
・淵21系統 [小山田はなみずきの丘]行
・淵65系統 [神奈中多摩車庫]行

エクセレント町田へのお問い合わせ

資料請求・見学予約・メールでのご相談はこちら
mail 資料請求・見学予約
お電話でのご相談はこちら
phone_in_talk 042-798-1165
まずはご見学・資料請求から

東京都で介護サービスをお探しの方は、こちらのページもよくご覧になっています